Leder du efter en dygtig rådgivende ingeniør til dit næste projekt?
Rådgivende ingeniør
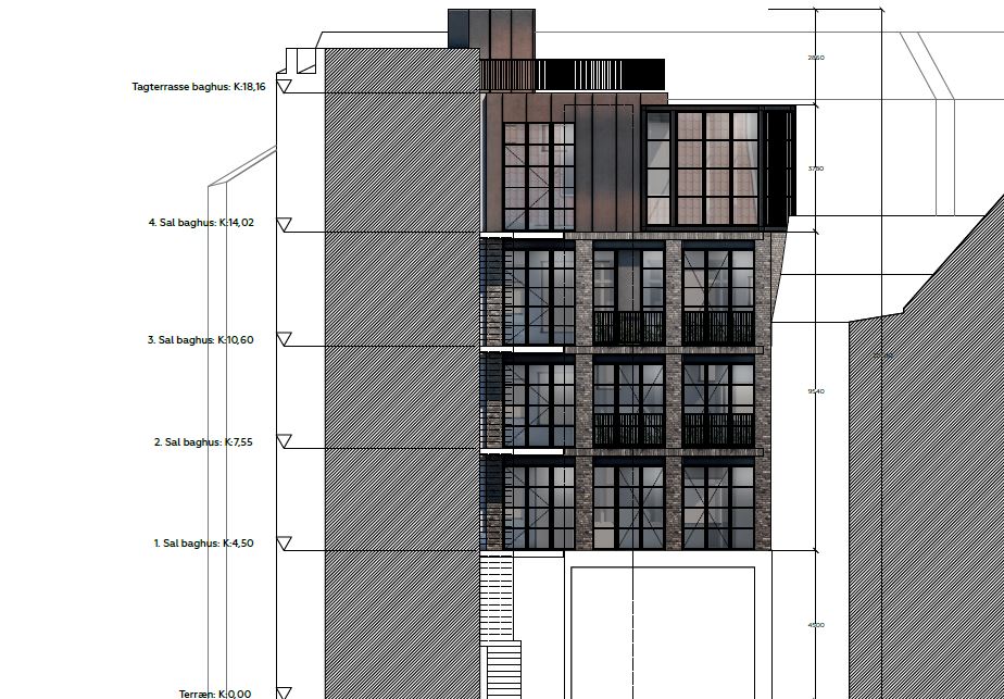
Vi er en rådgivende ingeniør virksomhed, som er klar til at hjælpe dig med dit byggeprojekt. Vi kan både klare mindre projekter med statiske beregninger samt større ombygninger og nyopførelser af både private huse og erhvervsejendomme. Ved større ombygninger kan vi være behjælpelige med at visualisere jeres drømme, lave myndighedsprojekt, hovedprojekt med statiske beregninger og konstruktioner, udbud til entreprenører med budrunde, økonomistyring og fagtilsyn, samt eftersyn.

Om Rådgivende Ingeniør // NemIngeniør
Vi er en virksomhed der yder byggeteknisk rådgivning indenfor det private byggeri, med det formål at yde en god og professionel service, hvor vi leverer et præsentabelt og overskueligt materiale, hvor kvalitet og pris hænger godt sammen for vores kunder.

Book et opstartsmøde, hvor vi sammen kan gennemgå jeres forventninger til projektet og høre om de tanker I gør jer.
Vi vil være den foretrukne rådgivende ingeniør for de private bygherrer i Storkøbenhavn, som skal bygge om og bygge til, hvor vi er anerkendt for vores høje service, kvalitet og præsentable arbejde.
