Warning: "continue" targeting switch is equivalent to "break". Did you mean to use "continue 2"? in /var/www/xn--rdgivende-ingenir-8qb09a.dk/public_html/wp-content/plugins/essential-grid/includes/item-skin.class.php on line 1145

Warning: "continue" targeting switch is equivalent to "break". Did you mean to use "continue 2"? in /var/www/xn--rdgivende-ingenir-8qb09a.dk/public_html/wp-content/plugins/revslider/includes/operations.class.php on line 2695
Etagebyggeri i København K - Rådgivende Ingeniør

Etagebyggeri i København K

Etagebyggeri i København K

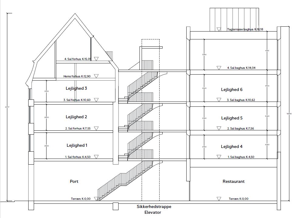
Centralt i København opføres et nyt etagebyggeri samt renovering af gammel etageejendom. Vi er rekvireret til at udføre konstruktioner, installationer, indeklima, lyd og brand.

Projekt beskrivelse

Bygherre: Erhverv
Lokation: København K, Danmark
År: 2018
Arkitekt: Tegnestuen LOKAL