Warning: "continue" targeting switch is equivalent to "break". Did you mean to use "continue 2"? in /var/www/xn--rdgivende-ingenir-8qb09a.dk/public_html/wp-content/plugins/essential-grid/includes/item-skin.class.php on line 1145

Warning: "continue" targeting switch is equivalent to "break". Did you mean to use "continue 2"? in /var/www/xn--rdgivende-ingenir-8qb09a.dk/public_html/wp-content/plugins/revslider/includes/operations.class.php on line 2695
Nyt hus i Skanderborg - Rådgivende Ingeniør

Nyt hus i Skanderborg

Nyt hus i Skanderborg

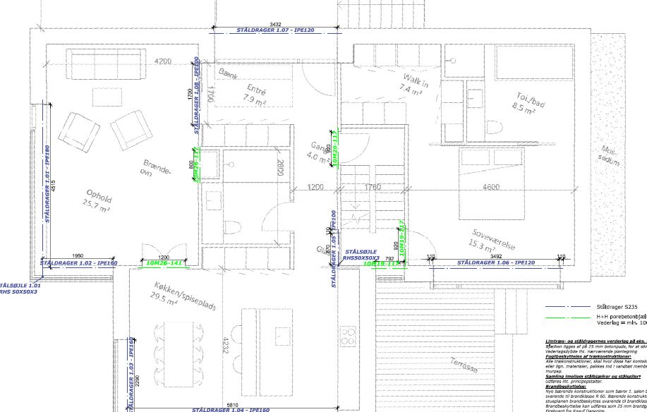
Vi hjalp med statisk dokumentation ved opførelse af villaejendom. Ejendommen er i 2 etager med kælder under, hvoraf den øverste etage er placeret i tagkonstruktionen. De 3 etager anvendes udelukkende til beboelse.

Projekt beskrivelse

Bygherre: Privat bygherre
Lokation: Skanderborg, Danmark
År: 2018