Warning: "continue" targeting switch is equivalent to "break". Did you mean to use "continue 2"? in /var/www/xn--rdgivende-ingenir-8qb09a.dk/public_html/wp-content/plugins/essential-grid/includes/item-skin.class.php on line 1145

Warning: "continue" targeting switch is equivalent to "break". Did you mean to use "continue 2"? in /var/www/xn--rdgivende-ingenir-8qb09a.dk/public_html/wp-content/plugins/revslider/includes/operations.class.php on line 2695
Nybyg i Skanderborg - Rådgivende Ingeniør

Nybyg i Skanderborg

Nybyg i Skanderborg

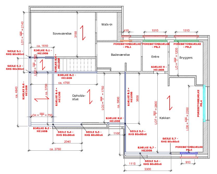
I forbindelse med opførelse af nyt enfamiliehus i Skanderborg, er ingeniør rekvireret til at udarbejde relevante statiske beregninger og tegningsmateriale.
Enfamilieshuset opføres med en hulmursydervæg med en formur af teglsten og en bagmur af gasbetonblokke. Arbejdet omhandler projektering af overliggere i ydervæg samt stabilitet af huset.

Projekt beskrivelse

Bygherre: Privat bygherre
Lokation: Skanderborg, Danmark
År: 2017